〒683-0043 鳥取県米子市末広町261番地
TEL: 0859-38-1330 FAX: 0859-38-1333
E-Mail: info@beings.co.jp
URL: http://www.beings.co.jp/
登録: 鳥取県知事(3)第1153号
TEL: 0859-38-1330 FAX: 0859-38-1333
E-Mail: info@beings.co.jp
URL: http://www.beings.co.jp/
登録: 鳥取県知事(3)第1153号
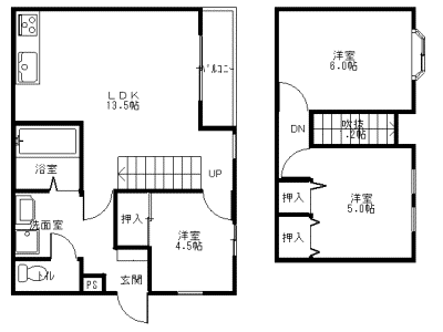
| アーバネスト西村[ 303号室 | |||
| 所在地 | 米子市錦町2丁目122-10 | 交 通 | 境線後藤駅より徒歩5分 |
| 種 別 | マンション | タイプ | 3・4階部分 メゾネットタイプ3LDK |
| 構 造 | 重量鉄骨造4階建て | 賃貸面積 | 67.8u(3・4階合計) |
| 家 賃 | 55,000円/月 | 建築年月 | 平成1年築 |
| 敷 金 | 55,000円 | 水道代 | 管理会社検針の上2ヶ月に1度請求致します。 |
| 礼 金 | 55,000円 | 駐車場 | 敷地内 4,000円/月・敷地外3,000円/月 |
| 取引態様 | 媒介 | 入居時期 | 補修工事中のため入居日相談 |
| 設 備 | 電気 上水道 給湯 下水道 集中LPガス シャワー エアコン1台 ウィンドウエアコン1台 Bフレッツ対応 | ||
| 備 考 | ○仲介手数料57,750円 ○借家人賠償責任保険の加入義務有り(別途保険料が必要です) ○更新手数料無し ○鍵交換料無し(新品希望の場合は別途必要です)○敷地外駐車料一台分無料キャンペーン中! ○キッチン、洗面台新設しました! |
||
| 情報更新日 | 2013/8/22 | 更新予定日 | 随 時 |
| 外観写真 |
![]() |
| 地 図 |
| 間取り図 |
![]() |
| 室内写真 |
![]() |




